Architectual Plans

Professional Plans for Your Residential & Commercial Projects in Atlanta, Georgia

At Builders Tech, we specialize in providing professional architectural plans for homeowners, investors, and developers in Atlanta, Georgia. Whether you’re planning a home addition, new construction, remodel, or multi-unit development, our detailed plans ensure your project starts with a solid foundation.

Architectural drawings and 3D models of a small house, showing front and rear elevations with detailed measurements and interior layout.

Our Architectural Plan Services Include:

  • Floor Plans – Clear layouts for each level of your project

  • Elevations – Exterior views to show height, materials, and finishes

  • Sections – Cut-through views that reveal interior structures

  • Details & Schedules – Specific construction notes and materials

  • Site Plans – Property layout including setbacks and lot coverage

Schedule Your Project Today!

Sample Set

Construction blueprint with detailed notes, abbreviations, drawings, and a site map for a residential building project labeled "Cover Page A-0" from Builders Tech.
Architectural blueprint showing four elevations of a single-story house, including front, right, left, and rear views with measurements, window placements, and chimney details.
Architectural blueprint of a house floor plan with labeled rooms, including bedrooms, bathrooms, living room, porch, and decks.
Architectural plans for a building addition including footing, foundation, and crawl space details with measurements and construction notes.
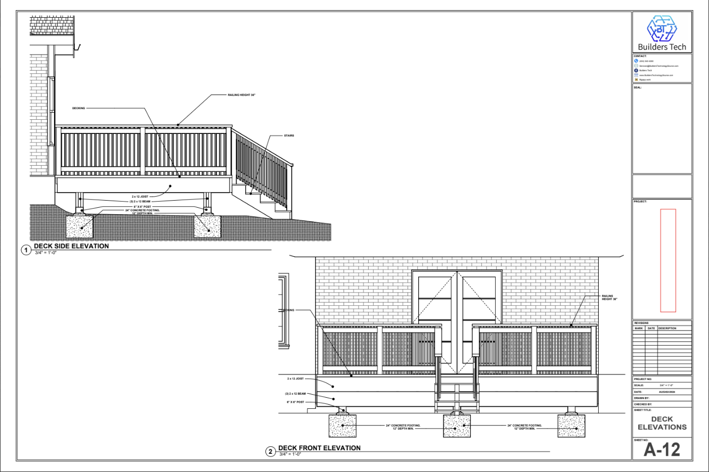
Blueprint drawing of a deck, showing side and front elevations, with labels for decking, railing height, stairs, joists, beams, posts, and concrete footings, created by Builders Tech.
Architectural drawing of a building's existing four perspectives, labeled as Existing 1 to Existing 4, with the company's logo and contact information on the top right corner. The drawing is titled 'Existing Isometric' with the sheet number A-4.
Architectural blueprint showing front, right, left, and rear elevations of a single-story house with detailed measurements, roof design, windows, doors, and decks, with a logo and contact information on the upper right corner.
Blueprint of a deck construction project with plans for the deck, deck footing, and deck framing, including measurements and structural details.
Architectural blueprints for a porch deck, including floor plan, framing plan, footing plan, and elevation views.
Floor plan of a house showing various rooms including a family room, living area, kitchen, dining, laundry, porches, bedrooms, bathrooms, and hallways in black and white.