Civil Plans

Planning Your Site for Success

At Builders Tech, we provide civil plans that lay the groundwork for successful projects in Atlanta, Georgia. Whether you’re preparing a site for new construction, a residential addition, or a multi-unit development, having detailed civil plans ensures that your project meets local regulations and works with the natural conditions of the land.

Landscape blueprint depicting a tree planting plan with circular zones, tree protection details, and a schedule, including an inset logo of Builders Tech.

Our Civil Plan Services Include:

  • Site Plans – Showing property boundaries, structures, and key site elements.

  • Grading Plans – How the land will be leveled and sloped to manage water runoff.

  • Drainage Plans – Placement of drains, stormwater management, and erosion control.

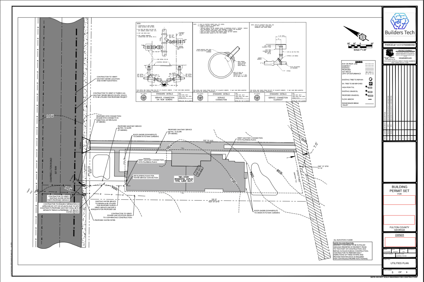
  • Utility Plans – Layouts for water, sewer, and electrical connections.

  • Erosion Control Plans – Strategies to prevent soil loss during construction.

Schedule Your Project Today!

Sample Plans

A detailed construction engineering plan showing site layout, plumbing connections, water service, and building permit information for a residential property in Fulton County, Georgia.
Construction plan for a rain garden showing cross-section, soil layering, native plants, and detailed specifications for front and rear rain gardens.
Detailed landscaping or tree planting plan with circular markers indicating tree positions, protected zones, and notes for a construction or site development project.
A detailed construction site plan showing existing and proposed structures, boundaries, and landscaping elements, with notes on erosion control and soil management.
Architectural site plan for a residential property showing house layout, driveway, trees with planting notes, existing alley, and landscaping details, with a legend and notes on construction guidelines.
A detailed construction site plan with notes, tree planting instructions, a legend, and property details, including layout, trees, and landscaping features.

Fence Layout

Flood map and site plan for a property in Dekalb County, Georgia, showing flood zones, building footprints, parking areas, and landscape features.

Siteplan for LDP

Site plan for a warehouse building development in Douglas County, Georgia. The layout includes property boundaries, building footprint, contour lines, and site details.